Vomsee
Bauwerke
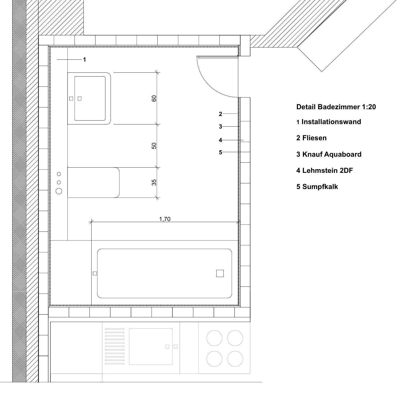
Lehmstein
Zimmermann
reproduktives entwerfen – baulücke in bochum mit brutalistischem referenzgebäude
Kommentare werden geladen …
Verfasse einen Kommentar …
E-Mail (Erforderlich)
Name (Erforderlich)
Website
Abonnieren
Abonniert
VOMSEE
Anmelden
Du hast bereits ein WordPress.com-Konto?
Melde dich jetzt an.
VOMSEE
Abonnieren
Abonniert
Registrieren
Anmelden
Kurzlink kopieren
Melde diesen Inhalt
Beitrag im Reader lesen
Abonnements verwalten
Diese Leiste einklappen